FIFTH & TILLERY

Austin, Texas

The post-industrial site at the intersection of 5th and Tillery streets in East Austin was conceived as a sustainable spec office developement of an existing derelict warehouse building. The bent-frame steel structure could not be re-purposed, so the design pivoted to a ground up 3-story structure comprised of a hybrid steel and mass-timber frame.

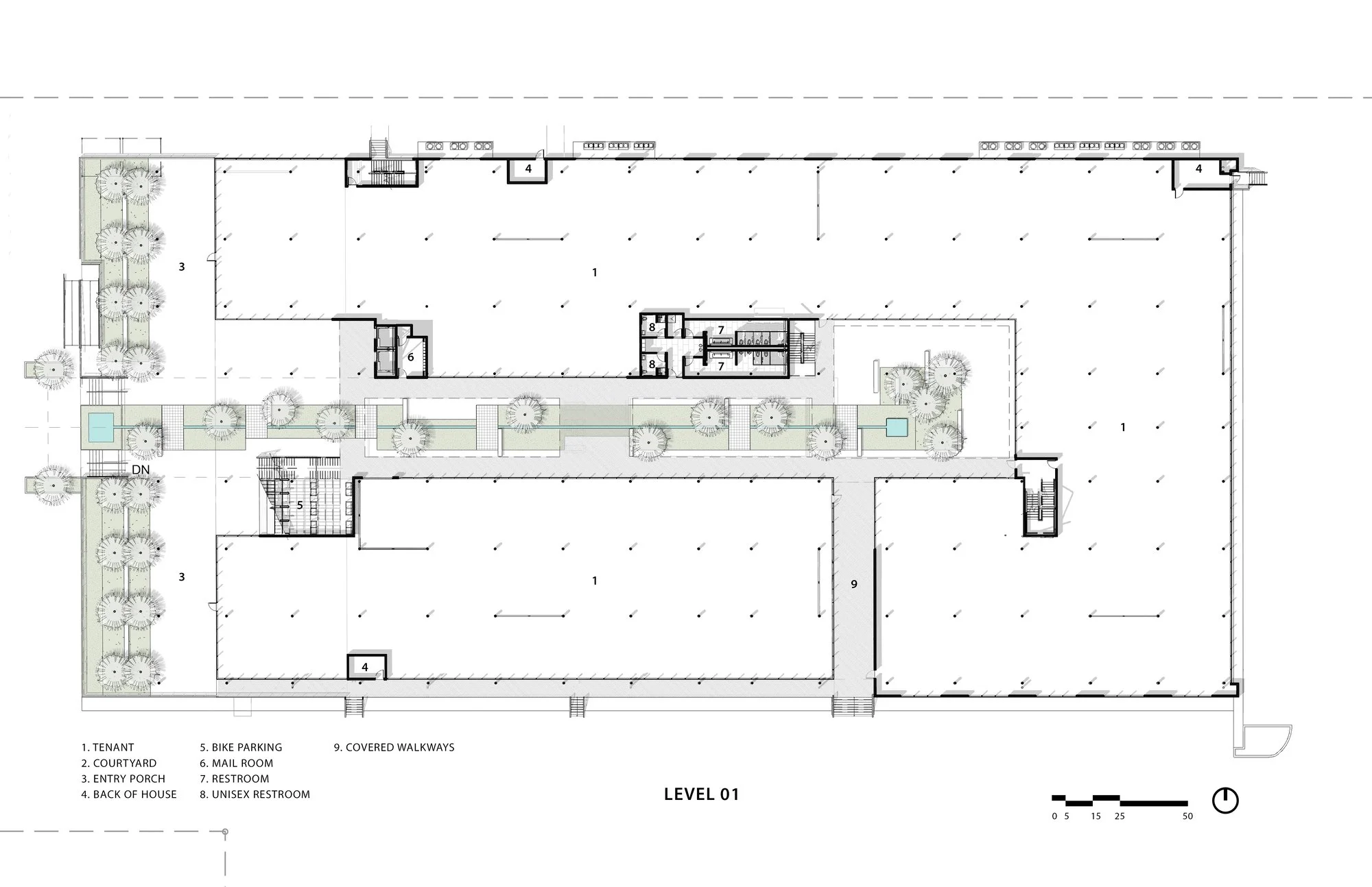
To mitigate the intense summer heat and bring light into the center of the 60,000 sf floor plate, the design carved out a central courtyard. This space would serve as a light well and exterior respite for building inhabitants. All circulation would be exterior within the courtyard, opening up to a massive solar plaza on the south end of the building, inviting the public into the space and forming a connection to the community.

The courtyard includes elements such as a fountain and water runnel that recirculates collected stormwater and uses it for landscaping irrigation. Large sycamore trees create ample shading with the open volume providing cooling breezes.  The solar array on the roof, which continues onto the open trellis shading the entry plaza, can generate nearly enough power to almost offset all energy costs.

INFO

Fifth & Tillery | Gensler

Project Status: Complete

Images courtesy of Gensler | Photographs by Matthew Neimann & Ryan Conway

Position:  Project Architect

Project Role & Contributions:

Completed Construction Documentation and executed Construction Contract Administration.

Location:

 

TEAM

Developers: 3423 Holdings, Inc.

Architecture: Gensler

Principal in Charge, Project Manager:  David Lynch

Design Leads:  Michael Waddell, Travis Albrecht

Project Architect:  Jayson Kabala

Structural: MJ Structures

MEP: Arete

Landscape: Campbell Landscape Architecture

General Contractor: RM Chiapas

Previous
Previous

The Moody Center

Next
Next

RigUp